1 План коттеджа.
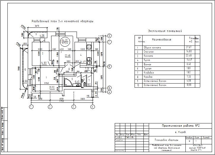
2 Планировка квартиры.
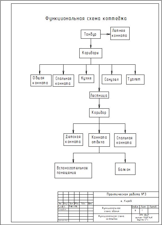
3 Функциональная схема коттеджа.
4 Здание по серии 1.020
5 Монолитное жб перекрытие.
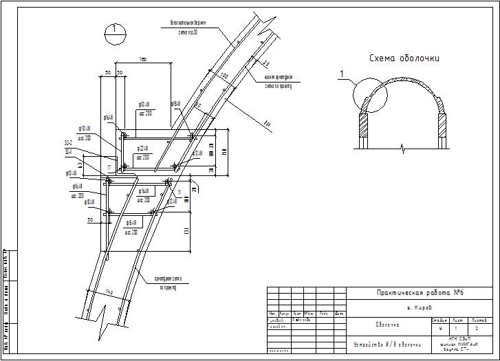
6 Устройство жб оболочки.
7 Усиление стропил. Устройство проема в сущ стене.
8. Конструирование мансарды.
Практические работы по Архитектуре зданий
- Тип работы
- Лабораторная работа
- Группа предметов
- Технические дисциплины
- Предмет
- Другое
- Вуз
- КГК СЭиП Филиал МИИГАиК
- Год сдачи
- 5 Окт 2013
- Демо-файлы







- Файлы работы
Нужна оригинальная работа? Ответы на тесты? И многое другое можно заказать кликнув сюда 👆
1599 Р
2400 Р
Описание
Оглавление
1 План коттеджа.2 Планировка квартиры.3 Функциональная схема коттеджа.4 Здание по серии 1.0205 Монолитное жб перекрытие.6 Устройство жб оболочки.7 Усиление стропил. Устройство проема в сущ стене.8. Конструирование мансарды.
Список литературы
-
Если Лабораторная работа на тему Практические работы по Архитектуре зданий Вам не подходит? Не беда! посмотрите похожие работы в Нашем поиске:)