Главная Каталог ТГУ Рабочая площадка промышленного здания, Вариант ЕАА (Курсовая работа Родионов)

ТГУ Рабочая площадка промышленного здания, Вариант ЕАА (Курсовая работа Родионов)

Тип работы
0
Группа предметов
Технические дисциплины
Предмет
Металлические конструкции
Вуз
ТГУ
Год сдачи
28 Фев 2022
Демо-файлы
скриншот Demo ЕАА на тему ТГУ Рабочая площадка промышленного здания, Вариант ЕАА (Курсовая работа Родионов)
Файлы работы

Нужна оригинальная работа? Ответы на тесты? И многое другое можно заказать кликнув сюда 👆


3990 Р
6420 Р
Описание

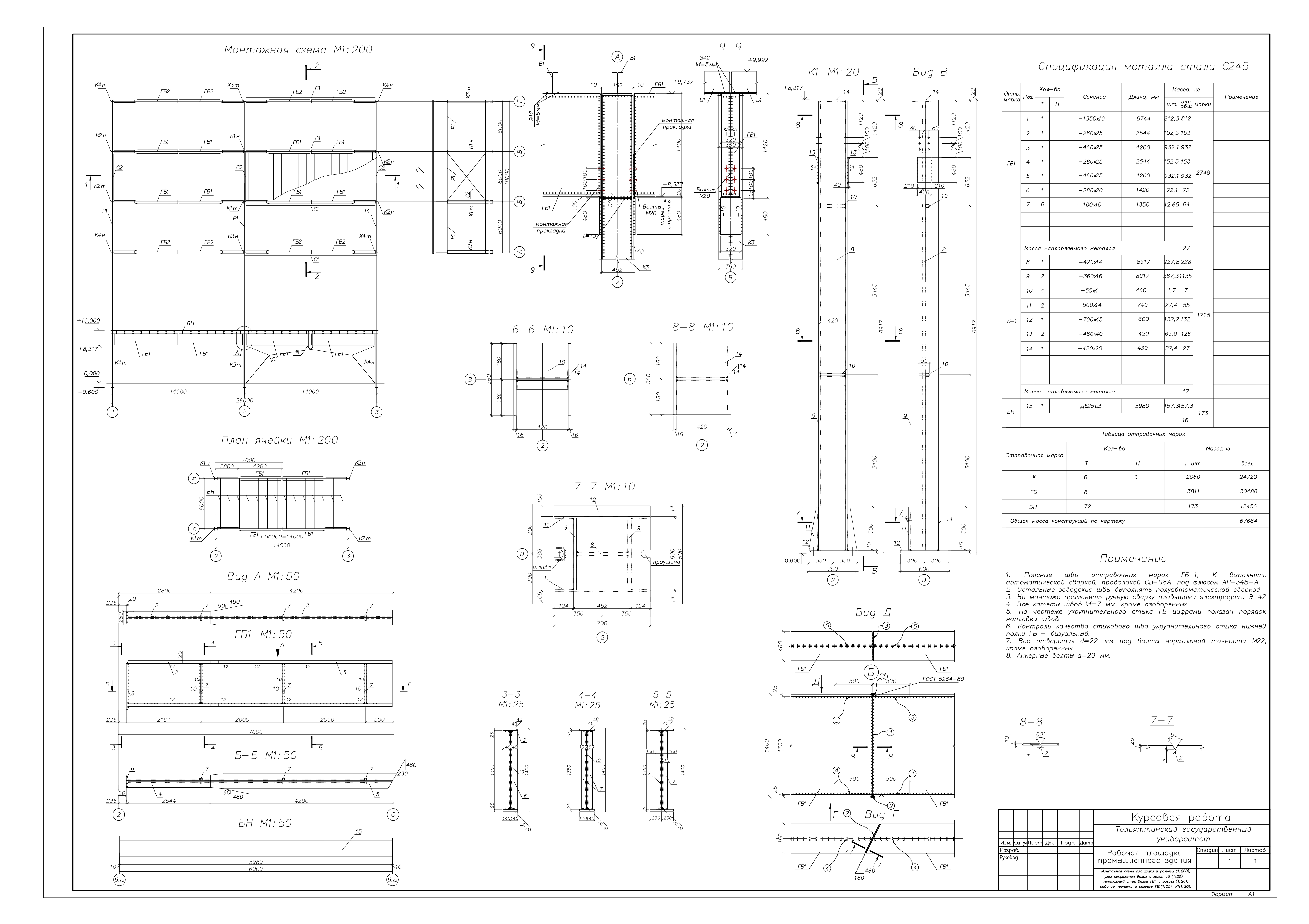
Курсовая работа по металлическим конструкциям - Рабочая площадка промышленного здания. В проекте рассчитана рабочая площадка промышленного здания: настил, балка настила, второстепенная балка, главная балка и колонна. Работа состоит из пояснительной записки и чертежей, выполненных в AutoCad. Полностью готовая и проверенная работа под преподавателя Родионова. Плагиат по ап.вуз больше 50 % (минимального порога) на момент сдачи.

Вариант взят по буквам Е.А.А

Размеры площадки в плане (в осях), м 28х18

Шаг колонн, м:

– в продольном направлении 14 м

– в поперечном направлении 6 м

Отметка верха площадки, м 10

Отметка верха габарита оборудования, м 8

Временная, нормативная нагрузка, кН/м2 - 26

Класс стали балок колонн С245

Оглавление

Введение 5

1. Конструирование и расчет элементов и узлов балочной клетки 6

1.1 Выбор оптимального варианта ячейки балочной клетки 6

1.1.1Балочная клетка нормального типа (вариант 1) 6

1.1.1.1 Компоновка ячейки 6

1.1.1.2 Расчет настила 6

1.1.1.3 Расчет балок настила 7

1.1.1.4 Технико-экономические показатели 8

1.1.2 Балочная клетка усложненного типа (вариант 2) 9

1.1.2.1 Компоновка ячейки 9

1.1.2.2 Расчет настила 9

1.1.2.3 Расчет балок настила 10

1.1.2.4 Расчет вспомогательных балок 11

1.1.2.5Технико-экономические показатели 14

1.1.3Технико-экономическое сравнение вариантов ячеек балочной клетки 15

1.2 Конструирование и расчет главной балки 16

1.2.1 Подбор основного сечения 16

1.2.2 Проверка стенки на местное давление 20

1.2.3 Конструирование и расчет опорной части главной балки 21

1.2.4 Конструирование и расчет узла изменения сечения 22

1.2.5 Проверка общей устойчивости 24

1.2.6 Обеспечение местной устойчивости 25

1.2.6.1Местная устойчивость стенки от действия касательных напряжений 25

1.2.6.2 Местная устойчивость полки от действия нормальных напряжений 26

1.2.6.3 Местная устойчивость стенки от действия нормальных напряжений 27

1.2.6.4Местная устойчивость стенки от совместного действия нормальных, касательных и местных напряжений 27

1.2.7 Расчет поясных швов 30

1.2.8 Расчет швов прикрепления опорных ребер к торцам балки 30

1.2.9 Конструирование монтажного стыка 31

2. Конструирование и расчет колонны 33

2.1 Стержень колонны 33

2.2 Оголовок колонны 37

2.3База колонны 37

Заключение 41

Список используемых источников 42

Список литературы

1. Абаринов, А.А. Составление деталировочных чертежей металлических конструкций. – М.: Стройиздат, 1978.

2. Металлические конструкции: учебник для студ. высш. учеб.заведений / [Ю. И. Кудишин, Е. И. Беленя, В. С. Игнатьева и др.]; под ред. Ю. И. Кудишина. 10 изд., стер. – Издательский центр «Академия», 2007. – 688 с.

3. Родионов, И.К. Конструктивные решения элементов и узлов рабочих площадок промышленных зданий: электронное учебно-методическое пособие / И.К. Родионов; под ред. В.М. Дидковского. – Тольятти: Изд-во ТГУ, 2015. – 1 оптический диск.

4. Родионов, И.К. Работа, расчет и конструирование сварной балки рабочей площадки промышленного здания: электрон. учеб.-метод. пособие / И.К. Родионов. – Тольятти : Изд-во ТГУ, 2019. – 1 оптический диск.

5. Родионов, И.К. Работа, расчет и конструирование стальных центрально-сжатых сплошных колонн: электрон. учеб. -метод. пособие / И.К. Родионов. – Тольятти: Изд-во ТГУ, 2015. – 1 оптический диск.

6. Родионов, И.К. Технико-экономическое сравнение вариантов компоновки ячеек балочных клеток. Методические указания. ТГУ. Тольятти, 2019.

7. СП 16.13330.2017 Стальные конструкции. Актуализированная редакция СНиП II-23-81*. – Введ. 20.05.2011. – М.: ОАО ЦПП, 2017. – 173с.

8. СП 20.13330.2017 Нагрузки и воздействия. Актуализированная редакция СНиП 2.01.07-85*. – Взамен СП 20.13330.2010; введ. 20.05.2017. – М.: ОАО ЦПП, 2011. -90с.

9. ГОСТ Р 57837-2017. Двутавры стальные горячекатаные с параллельными гранями полок. / ИУС 7-2018 г.

10. ГОСТ 535-2005. Прокат сортовой и фасонный из стали углеродистой обыкновенного качества. / N32-ст, 2008 г.

11. ГОСТ 82-70. Прокат стальной горячекатаный широкополосной универсальный. / ИУС 12-88-1988 г.


Если 0 на тему ТГУ Рабочая площадка промышленного здания, Вариант ЕАА (Курсовая работа Родионов) Вам не подходит? Не беда! посмотрите похожие работы в Нашем поиске:)